SENSIO FAS1203V
Ke stažení
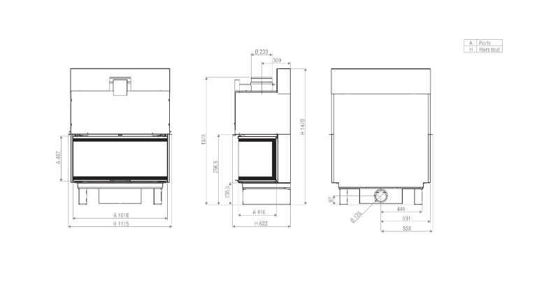
Ceník ke staženíOcelové topeniště FAS 120 3V - čelní, pravé a levé boční prosklení
Standartní provedení
- Výsuvné dveře
- Deflektor vestavěný
- Oplach skla
- Stavitelné nohy
Parametry
- Hmotnost: 360 kg
- Spalinové hrdlo: 230 mm
- Hrdlo přívodu vzduchu: 125 mm
- Délka polen: 50 cm
- Max. hodinová spotřeba: 2,6 kg/h
- Účinnost: 75,0 %
- Typ regulace: manuální
- Sezoní energetická účinnost: 65 %
- Nominální výkon: 16,0 kW
- CO emise (%CO à 13% O2): 8,86%
- Hmotnostní tok spalin: 15,7 g/s
Volitelná výbava
- Vyzdívka světlá/ šedá
Vzálenost od hořlavých materiálů:
- vzadu 500 mm
- z boku 500 mm
- z čela 1200 mm
Kód produktu:
FAS1203V
Produkt je zařazen v následujících kategoriích:
Teplovzdušné krbové vložky ocelovéProč si vybrat nás?
- Tradice od roku 1997
- Výhradní distributor
- Flexibilita a péče
- Odborné poradenství
Prohlédněte si podobné produkty a načerpejte inspiraci.
Načerpejte inspiraci při prohlížení našich realizací, ale nezapomínejte, že fantazii se meze nekladou a my jsme schopni zhmotnit (téměř) jakékoli Vaše představy.
Průvodce výběrem
